
House in Stanmore
2024 Gadigal & Wangal Country / Stanmore, NSW

2024 Gadigal & Wangal Country / Stanmore, NSW
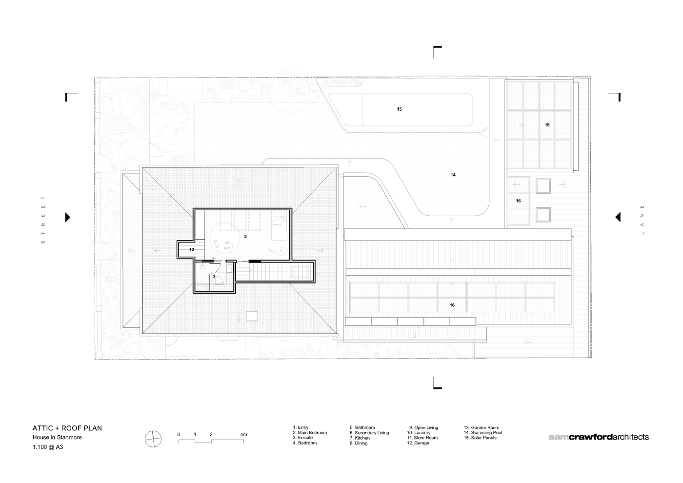
Taking advantage of a one and a half width block, House in Stanmore addresses the challenge of being sited in an overland flood plain, replacing an ageing extension to create a generous home with the future in mind.

Resilient Design with a Light Touch
Elevated living areas sit above flood levels, connected by a wraparound concrete verandah that extends into a courtyard, forming a generous outdoor room. Clerestory windows and a skylight emphasise a floating curved ceiling over the main living spaces.
Discover more

A separate rear wing includes a garage, bathroom, laundry, and multipurpose room, providing potential accommodation for a future live-in carer.
A textural recycled brick wall forms a sculptural boundary to the rear lane its undulating surface enhancing the once unloved laneway, a civic minded interface which reinforces the house’s connection to its urban setting.






| Project info | Details |
|---|---|
| Team | Sam Crawford, Jarad Grice, Héléna Short, Jarrod Ruchalski |
| Builder | Build By Design |
| Consultants | Town Planner: Avenue Studio Structural Engineer: Cantilever Hydraulic & Civil Consultant: Partridge Pool: KMD Outdoor Landscape Consultant: TARN PCA: BC Australia Quantity Surveyor: QS Plus Lighting Consultant: Architectural Lighting Design Acoustic Consultant: Acoustic Logic WSC: Ausflow |
| Council | Inner West Council |
| Photographer | Brett Boardman |
| Awards | 2025 Houses Awards – House Alteration and Addition over 200sqm – Shortlist |
| Published | Habitus Living HomeWorldDesign |
| Art | Poolside Mural – Nico Nicoson, artist Ames Yavuz Gallery: Dining & Bedroom – Julian Meagher, artist Gym – Karen Black, artist |
| Completion | 2024 |
What we do
Thoughtfully designed homes that reflect how you live, now and into the future. We design spaces that quietly elevate how people live and connect. These are the qualities that define our work & create a lasting, positive impact. Learn more about our residential home architecture.
Discover more