
Wake Murphy House
2004 Gadi Country / Camperdown, NSW

2004 Gadi Country / Camperdown, NSW
Our clients had recently purchased a run-down single-storey Victorian row house that had two rooms for sleeping at the front with an attic study over, and a poorly built section at the rear which housed the living, washing, and cooking spaces of the house. They agreed to demolish the rear wing and start over.

Rebuilding the Rear Wing with Purpose
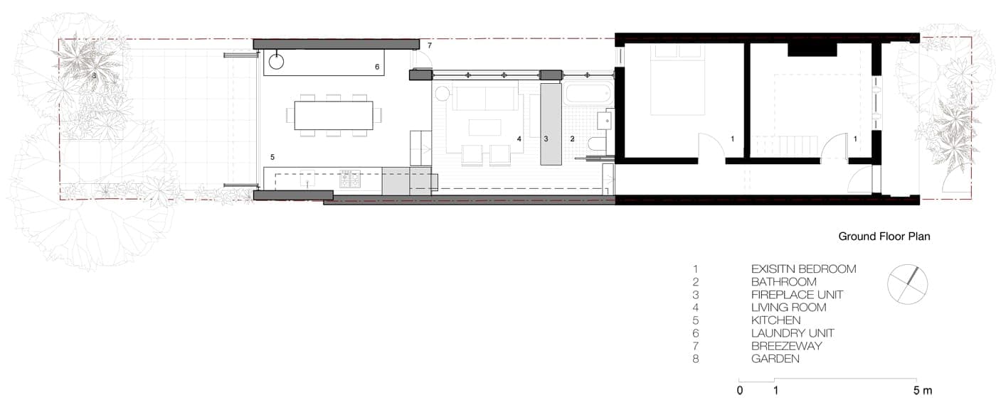
The challenge within the client’s brief was to accommodate all the requirements of habitation (other than sleeping) – a kitchen, bathroom, laundry, living and dining space – into 40 sqm, and make it feel like double that.
Discover more

We washed walls with light, by a strip skylight down one side and a rear glazed wall. A light space, particularly when walls are washed with light, gives a greater sense of space.
There are no dividing walls. The bathroom is concealed behind a joinery unit that ‘floats’ clear of the external walls, and the laundry is concealed in a side-board joinery unit to the dining space. Rooms, dining and living, are instead defined by a change of level, and floor finish.
Each item of joinery serves at least two uses. The fireplace/TV/entertainment unit also serves as the wall to the bathroom and bathroom vanity cabinet. The kitchen cabinets stretch into the living room and become bookshelves. The dining room side-board also houses the laundry.
The result is a compact, finely crafted, multi-layered living space.

| Project info | Details |
|---|---|
| Team | Sam Crawford, Jolyon T Sykes, Cressida Bealeg |
| Builder | Andrew Simpson, AS & KB |
| Consultants | Structural Engineer: Tony Russo, Geoff Ninnes Fong Land Surveyor: Lean & Hayward |
| Council | Marrickville |
| Photographer | Brett Boardman |
| Published | indesign Vol 22 2005 |
| Completion | 2004 |
What we do
Thoughtfully designed homes that reflect how you live, now and into the future. We design spaces that quietly elevate how people live and connect. These are the qualities that define our work & create a lasting, positive impact. Learn more about our residential home architecture.
Discover more