
Kurraba Point House
2024 Cammeraygal Country / Kurraba Point, NSW

2024 Cammeraygal Country / Kurraba Point, NSW
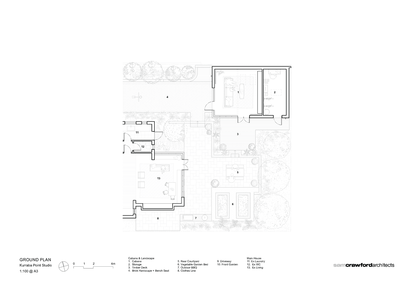
The brief from our clients was to demolish the existing garage to the rear of their property and design a new breakout living studio space and an externally accessed storage space for their family of six.

A Studio Shaped with Care
The studio is nestled into the northeastern corner of the site, between the neighbouring lane and the driveway and faces towards the outdoor living area. The building’s hipped roof form reduces its bulk and scale and preserves the neighbour’s views towards the harbour and Sydney CBD.
Discover more

In 2017, SCA completed a modest alterations and additions to the main heritage-listed dwelling on the property, which featured internal refurbishments, new skylights and a rear sunken living room with steel framed glazed windows and doors onto the rear garden. Externally the addition was constructed of recycled brick and was protected from the weather by a custom fabricated steel awning.
We designed the new studio with our previous work in mind and aimed to tie the two living spaces together through shared materiality (recycled brick, steel windows and burnished concrete floors) and by creating a visual link between the two buildings. The two additions frame the rear outdoor living area, and orientate activity away from the street, enhancing privacy and the connection to the garden. New recycled brick, sandstone hardscape areas, vegetable gardens, outdoor BBQ and planting designed by Studio U.C revitalize the outdoor living area. Dark painted fibre cement sheeting forms a recessive backdrop for the lush garden and for the vibrant colour internally.
The studio was designed to be durable enough for the day-to-day activities of a young family with teenagers, and robust detailing was considered throughout. Painted oversized plywood skirting boards ensure the walls are protected internally and create a visual datum which is continued externally. A similar detail is utilised in the storage shed, with full plywood sheets extending the length of the walls. Joinery is lifted off the ground to make the space easy to clean. Two skylights facing north draw sunlight into the space.





| Project info | Details |
|---|---|
| Team | Sam Crawford, Allen Huang, Ken Warr, Justine Anderson |
| Builder | Michael Downing Constructions |
| Consultants | Structural Engineer: Cantilever Civil Engineer: Partridge Heritage Consultant: Weir Phillips Heritage Consultant: Zoltan Kovacs Architect PCA: Residential Certifying Specialist Town Planner: Avenue Studios WSC: Ausflow |
| Council | North Sydney Council |
| Photographer | Brett Boardman |
| Completion | 2024 |
| Published | Domain, Sydney Morning Herald |
What we do
Thoughtfully designed homes that reflect how you live, now and into the future. We design spaces that quietly elevate how people live and connect. These are the qualities that define our work & create a lasting, positive impact. Learn more about our residential home architecture.
Discover more